Site plans 2010
Site Plans 2010
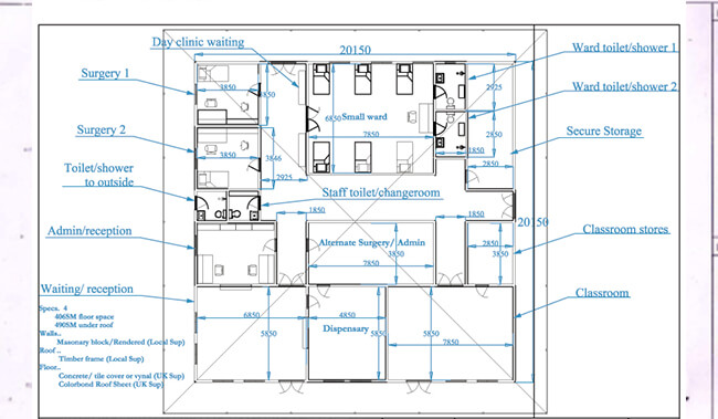
Site development for hospital 2011
Access to water 2011
Construction 2011
Hospital completed
First patients 2012
New incubator 2016
More Supplies arrive 2014
Nurses at hospital 2012